?!DOCTYPE html PUBLIC "-//W3C//DTD XHTML 1.0 Transitional//EN" "http://www.w3.org/TR/xhtml1/DTD/xhtml1-transitional.dtd">
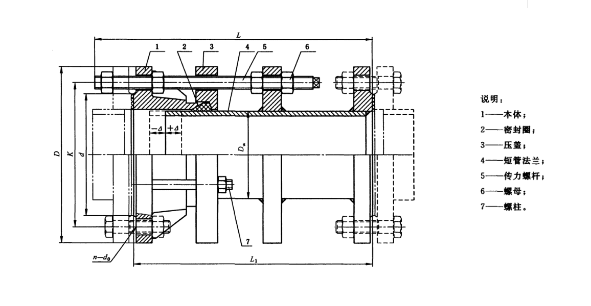
名称QVSSJAFC/CC2F型不锈钢双法兰松套传力接? 标签Q?/strong>VSSJAF/C2F型不锈钢双法兰松套传力接?/a> 产品用途:VSSJAFC型双法兰传力接头适用于输送v水、E水、冷热水、饮用水、生zL水、原沏V燃沏V润滑a、成 VSSJAF型双法兰传力接头适用于两边均与法兰连接的道中,安装时调整品两端与法兰的安装长度,对角依次均匀拧紧压螺栓,使其成ؓ一个整体,q有一定的位移量,方便安装l修ӞҎ现场寸q行调整在工作时Q可以?
产品特点
传力接头分类有:单发C力接头、双法兰松传力接头、可拆式双法C力接头?/span>
传力接头材质Q主要有Q235钢、不锈钢、铸钢、球墨铸铁等。不同的用途选用不同的材质和型号?/span>
双法C力接头适用范围
VSSJAF型双法兰传力接头适用于输送v水、E水、冷热水、饮用水、生zL水、原沏V燃沏V润滑a、成品a、空气、煤气、温度不高于250度的蒸汽和颗_粉状等介质?/span>
子外径
Dw
总长
L
安装
寸
L1
调节?span style="color: rgb(255, 255, 255); font-family: 微Y雅黑,Microsoft YaHei; font-size: 20px;">?/span>
质量
kg
如需最新数据请联系在线客服
VSSJAFC/CC2F型不锈钢?/a>
CC2F型可拆式双法兰松?/a>
VSSJAFC型可拆式双法?/a>
VSSJAFG单法C力接?/a>
沛_良众业有限公司 手机P18638277136 Q?371-64018718 传真Q?nbsp;0371-64018718 邮箱Q?50165323@qq.com 地址Qm义市西村镇西?nbsp; |址Q?a href="http://m.szheyu.cn" target="_self">http://m.szheyu.cn
咨询报hQ?8638277136(陈?
技术指|13849173666(陈工Q?/p>
邮箱Qhnlzpipe@126.com
国内热线Q?371-64018718
地址Qm义市西村镇西?/p>
|址Qhttp://m.szheyu.cn
许可证号Q?豫ICP?8020186?/a> 技术支持:良众|络?/p>